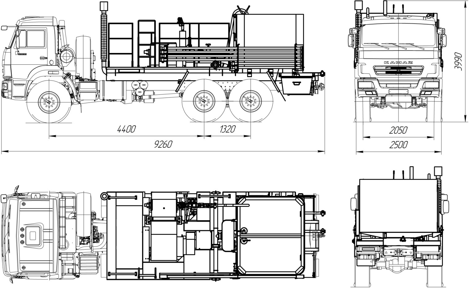
Агрегат цементировочный 5870-02 на шасси КАМАЗ-43118 без спального места, насос высокого давления с редуктором СИН-32.00.400.000 трехплунжерный (диаметр плунжеров 100 мм), привод от КОМ, бак мерный 6 куб.м.. цементный бак 0,25 куб.м., трубопровод приемный 100 мм, трубопровод напорный 50 мм, Pmax=50 мПа, D=100 мм, средства ЗИП, средства безопасности
Каталог
Нефтепромысловая техника
Нефтепромысловая техника на шасси КАМАЗ
Агрегат цементировочный АЦ
Агрегат цементировочный 5870-02 на шасси КАМАЗ-43118 без спального места, Pmax=50 мПа, D=100 мм Агрегат цементировочный 5870-02 на шасси КАМАЗ-43118 без спального места, Pmax=50 мПа, D=100 мм
технические характеристики
|
Модель шасси |
«КамАЗ» |
|
|
43118-3017-46 |
43118-3027-46 |
|
|
Колесная формула |
6×6 |
|
|
Мощность двигателя, л.с. |
300 |
|
|
Коробка передач |
154 или ZF9 |
|
|
Спальное место |
1 (одно) |
|
|
Объем топливного бака, л |
нет |
|
|
Оборудование |
||
|
Насосный агрегат |
Насос высокого давления с редуктором СИН-32.00.400.000 |
|
|
Тип |
Трехплунжерный |
|
|
Диаметр плунжеров, мм |
100 |
|
|
Привод насоса |
От КОМ шасси |
|
|
Бак мерный |
6 м3, двухсекционный с донными клапанами |
|
|
Цементный бачок |
0,25 м3 |
|
|
Трубопровод приемной линии |
Ду 100 мм |
|
|
Трубопровод напорной линии |
Ду 50 мм |
|
|
Технические данные |
||
|
Перекачиваемая жидкость |
неагрессивные и абразивосодержащие жидкости |
|
|
Полезная мощность, кВт |
130 |
|
|
Наибольшая идеальная подача, л/с |
16,3 |
|
|
Максимальное давление нагнетания, МПа |
50 |
|
|
Ход плунжера, мм |
130 |
|
|
Передаточное число редуктора |
12,78 |
|
|
Окраска оборудования |
Бак мерный, бачок цементный, ящик под колена шарнирные, трубопроводы приемных линий - RAL 5015 (синий); |
|
|
ЗИП навесного оборудования |
- вспомогательный трубопровод Ду50, общая длина - 23.5 м, количество труб - 6 шт.; |
|
|
Средства безопасности |
- огнетушитель ОП-6 - 1 шт.; |
|
|
Расположение запасного колеса |
За мерным баком |
|
Похожие товары
6х6, 300 л.с., насос ЦН 26-32 / НПЦ-32 (Pmax = 40 МПа, D = 90 мм), с водоподающим блоком (Д120-44М), длина базового шасси - 9300 мм.
Агрегат цементировочный 5870-02 на шасси КАМАЗ-43118 со спальным местом, насос высокого давления с редуктором СИН-32.00.400.000 трехплунжерный (диаметр плунжеров 100 мм), привод от КОМ, бак мерный 6 куб.м.. цементный бак 0,25 куб.м., трубопровод приемный 100 мм, трубопровод напорный 50 мм, Pmax=50 мПа, D=100 мм, средства ЗИП, средства безопасности
6х6, 300 л.с., насос ЦН 26-32 / НПЦ-32 (Pmax = 23 МПа, D = 115 мм), без водоподающего блока, длина базового шасси - 9300 мм., мерный бак с наклонным дном

