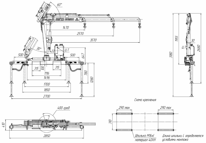
вылет 3,57 м, грузовой момент 1,83 тм, грузоподъемность 990 кг
ИМ-20
технические характеристики
Технические характеристики ИМ-20
| Количество гидравлических выдвижных секций, шт. | 1 |
| Грузовой момент, тм | 1,83 |
| Максимальная грузоподъёмность, кг | 990 |
| Грузоподъёмность при максимальном вылете, кг | 505 |
| Максимальный вылет стрелы, м | 3,57 |
| Рабочая температура окружающей среды, °С | -40...+40 |
| Максимальная высота подъёма, м | 4,66 |
| Максимальная глубина опускания, м | 1,64 |
| Способ управления | Гидравлический |
| Угол поворота колоны, град. | 400 |
| Место управления | С земли, ДУ |
| Транспортное расположение опор | Вверх |
| Тип выдвижных опор | Механические |
| База выдвижных опор, мм | 2700 |
| Масса без гидронасоса, рабочей жидкости, кг | 425 |
| Емкость гидробака, л | 27,2 |
| Производительность насоса, л/мин | 11 |
| Рабочее давление, МПа | 20 |
| Размер по осям шпилек, мм | 310 |
| Размер для монтажа на раме, мм | 550 |
| Габаритные размеры в транспортном положении, (высота х ширина х глубина) мм | 1850 х 1720 х 410 |


