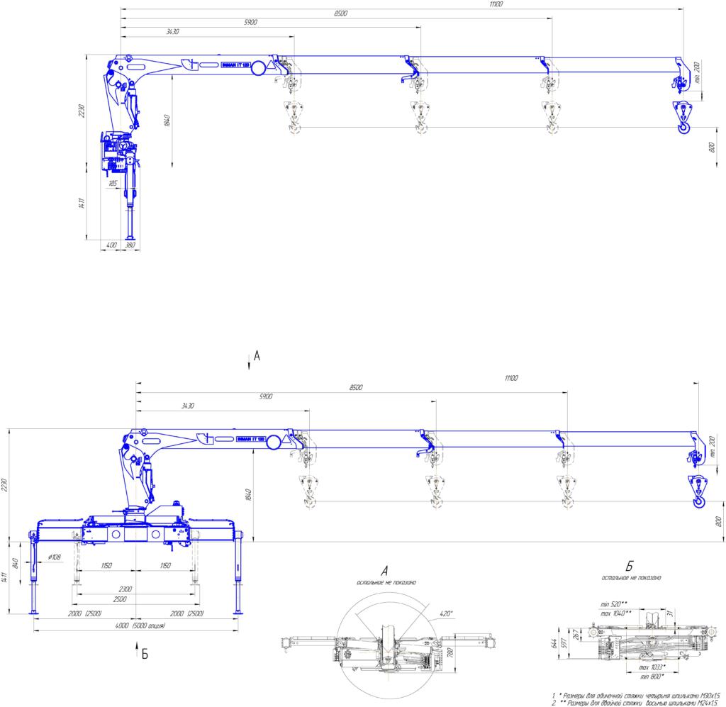
вылет 11,1 м, грузовой момент 12,7 тм, грузоподъемность 5050 кг
ИТ-120
технические характеристики
Технические характеристики ИТ-120
| Количество гидравлических выдвижных секций | 3 шт |
| Грузовой момент | 12,7 тм |
| Максимальная грузоподъемность | 5050 кг |
| Грузоподъемность (при вылете стрелы | 1700 кг (5,9 м) |
| Грузоподъемность на максимальном вылете | 800 кг |
| Максимальный вылет стрелы | 11,1 м |
| Рабочая температура окружающей среды, °C | - 40 ... +40 |
| Максимальная высота подъема | 11,85 м |
| Максимальная глубина опускания | 13,50 м |
| Способ управления | Гидравлический |
| Угол поворота колонны | 420 град. |
| Место управления | С земли |
| Тип аутригеров | Поворотные |
| Способ выдвижения опоры | Ручной |
| Стандартная база опор | 4000 мм |
| Длинная база опор | 5000 мм |
| Масса без гидронасоса и рабочей жидкости | 1850 кг |
| Емкость гидробака | 120 л |
| Производительность насоса | 40 л/мин |
| Рабочее давление | 21 МПа |
| Размер по осям шпилек | 597 мм |
| Размер для монтажа на раме | 780 мм |
| Габаритные размеры в трансп. положении, мм | 4000 х 2500 х 2300 |


