вылет 11.2 м, грузовой момент 6.8 тм, грузоподъемность 3300 кг
PK 7.501 SLD 5
технические характеристики
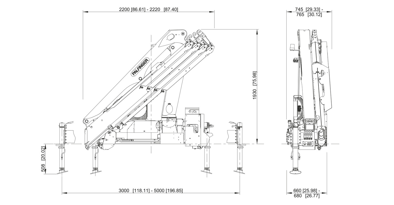
Технические характеристики PK 7.501 SLD 5
| Макс. подъемный момент | 6.8 тм |
| Макс. грузоподъемность | 3300 кг |
| Макс. гидравлический вылет | 11.2 м |
| Макс. вылет с ручным выдвижением | 12.9 м |
| Угол поворота | 400° |
| Усилие поворота с одинарным приводом | 0.8 тм |
| Стандарт размаха аутригеров | 3 м |
| Ширина в транспортном положении | 2.20 м |
| Макс. рабочее давление | 360 бар |
| Требуемое для монтажа пространство (станд.) | 0,66 м |
| Общий вес (станд.) | 780 кг |


