вылет 11.1 м, грузовой момент 4.6 тм, грузоподъемность 3300 кг
PK 5.001 SLD 1
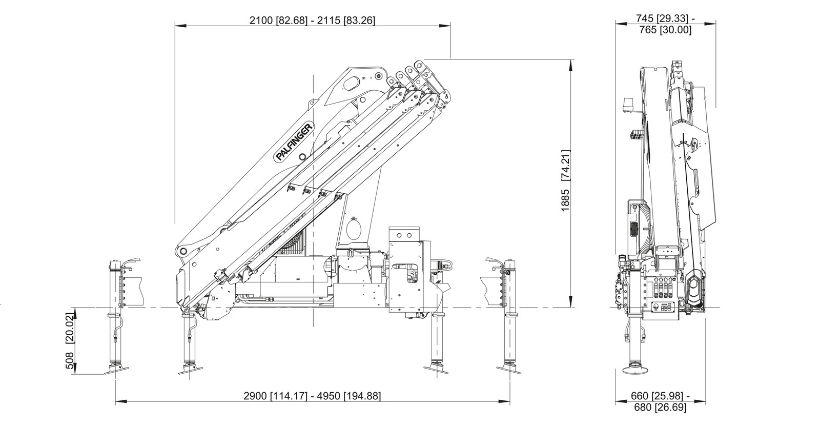
технические характеристики
Технические характеристики PK 5.001 SLD 1
| Макс. подъемный момент | 4.6 тм |
| Макс. грузоподъемность | 3300 кг |
| Макс. гидравлический вылет | 11.1 м |
| Макс. вылет с ручным выдвижением | 12.7 м |
| Угол поворота | 400° |
| Усилие поворота с одинарным приводом | 0.6 тм |
| Стандарт размаха аутригеров | 2.9 м |
| Ширина в транспортном положении | 2.10 м |
| Макс. рабочее давление | 330 бар |
| Требуемое для монтажа пространство (станд.) | 0,66 м |
| Общий вес (станд.) | 695 кг |


